0

STUDIO VENDU LOUÉ - EMPLACEMENT RECHERCHÉ (LAC et THERMES)

Saint-Paul-lès-Dax (40990)
Réf : 158 T

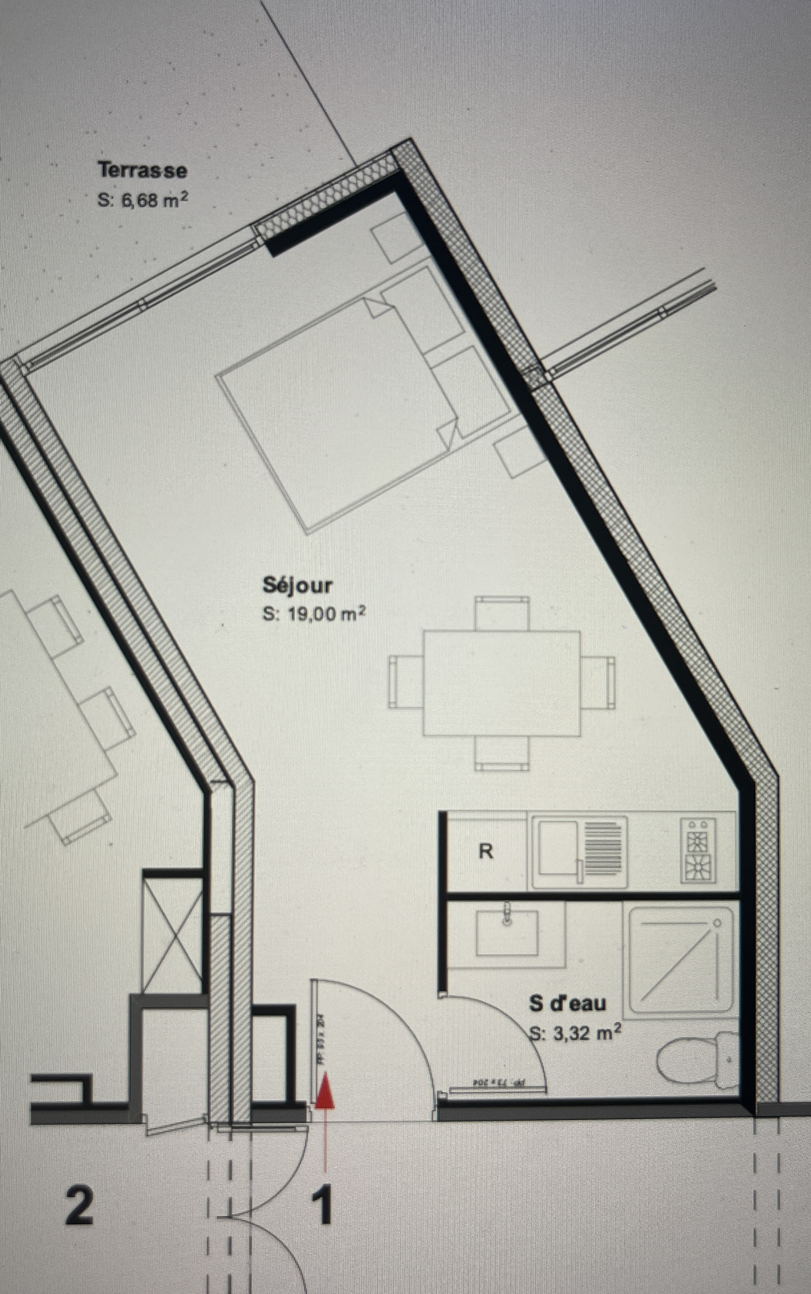
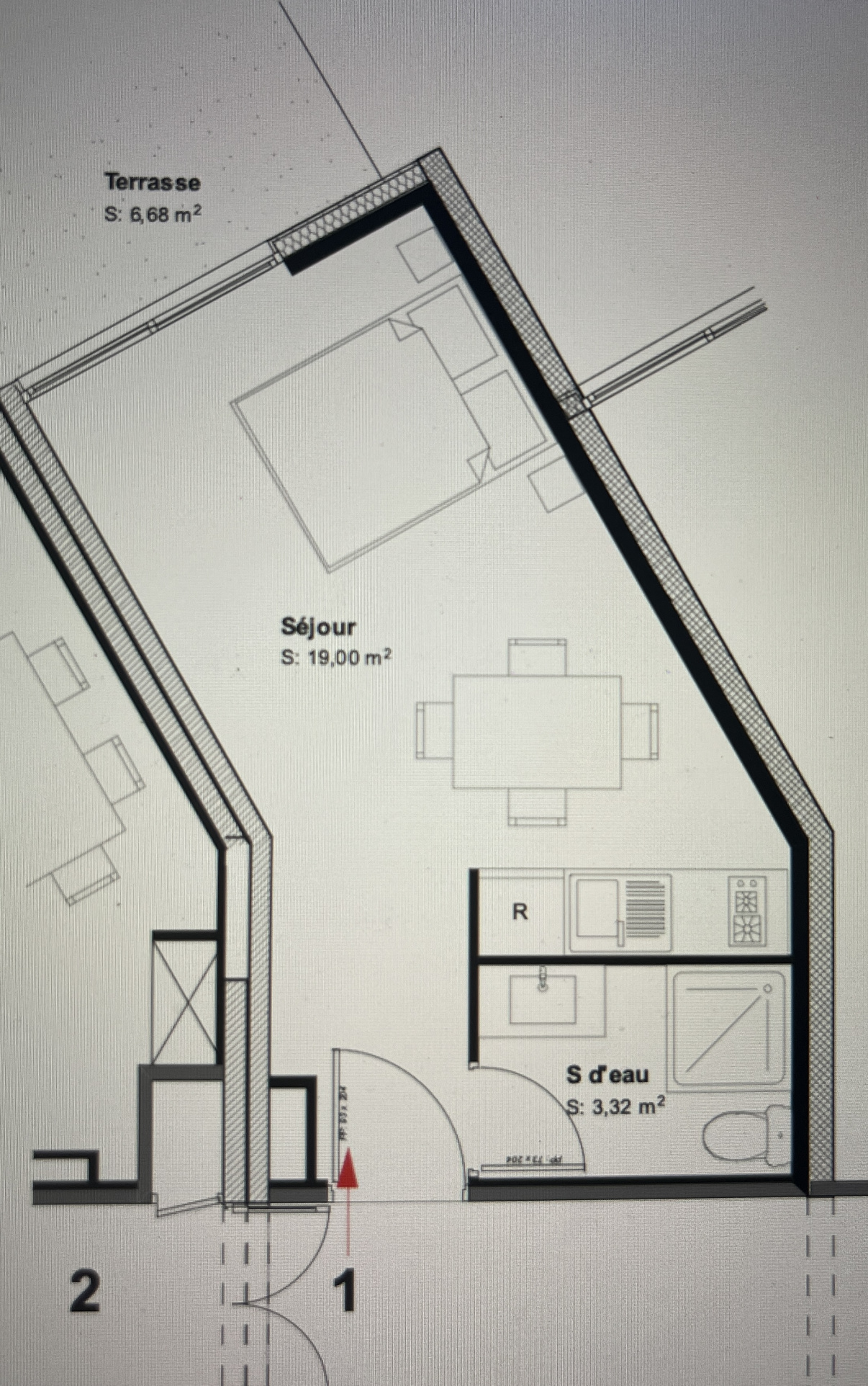
Situé au rez-de-chaussée d'une résidnece de 60 lots, ce studio de 21,56 m2 représente une excellente opportunité d'investissement locatif, mensuel ou saisonnier dans un environnement trés convoité, réputé pour son lac et ses thermes.

Descriptif du bien :

- 21,56 m2 avec petite terrasse de 6,25 m2

-Pièce principale avec kitchinette.

-Salle d'eau avec WC et espace machine à laver.

-Exposition agréable, accés facile.

-Résidence sécurisée

Le bien est vendu avec un bail en cours pour logement vide du 12/01/2025 garantissant une rentabilité immédiate avec un loyer mensuel de 435.00 € charges comprises.

Idéal investisseur souhaitant diversifier son patrimoine avec un bien à forte attractivité touristique et thermale.

Honoraires charge vendeur.


Les informations sur les risques auxquels ce bien est exposé sont disponibles sur le site Géorisques
Prix du bien 83 500 €
Pièce(s) 1

Caractéristiques du bien

Caractéristiques Valeurs
Code postal 40990
Surface habitable (m²) 21,56 m²
Nombre de pièces 1
Ascenseur OUI
Mode de chauffage Electrique
Type de chauffage Radiateur
Format de chauffage Individuel
Interphone OUI
Visiophone NON
Exposition Est
Année de construction 1991

Infos financières

Caractéristiques Valeurs
Prix de vente honoraires TTC inclus 83 500 €
Charges 51,75 €

Bilans énergétiques

DPE GES
Ce bien vous intéresse ?
Fieldset par défaut
Fieldset par défaut
Validation

* Champs obligatoires

Contacter l'agence
Validation
Les informations recueillies sur ce formulaire sont enregistrées dans un fichier informatisé par La Boite Immo agissant comme Sous-traitant du traitement pour la gestion de la clientèle/prospects de l'Agence / du Réseau qui reste Responsable du Traitement de vos Données personnelles.
La base légale du traitement repose sur l’intérêt légitime de l'Agence / du Réseau.
Elles sont conservées jusqu'à demande de suppression et sont destinées à l'Agence / au Réseau.
Conformément à la loi « informatique et libertés », vous pouvez exercer votre droit d'accès aux données vous concernant et les faire rectifier en contactant l'Agence / le Réseau.
Si vous estimez, après avoir contacté l'Agence / le Réseau, que vos droits « Informatique et Libertés » ne sont pas respectés, vous pouvez adresser une réclamation à la CNIL.
Nous vous informons de l’existence de la liste d'opposition au démarchage téléphonique « Bloctel », sur laquelle vous pouvez vous inscrire ici : https://www.bloctel.gouv.fr 
Dans le cadre de la protection des Données personnelles, nous vous invitons à ne pas inscrire de Données sensibles dans le champ de saisie libre
Ce site est protégé par reCAPTCHA, les Politiques de Confidentialité et les Conditions d'Utilisation de Google s'appliquent.